Étape 1 | Vous introduisez votre demande
Comment ?
Si vous introduisez votre demande en ligne, nous recevrons immédiatement toutes les informations nécessaires et pourrons traiter votre demande plus rapidement.
Demande de branchement à l’eau potable
Gardez les documents suivants à portée de main (leur taille ne peut dépasser 4 MB et ils doivent de préférence être au format pdf ou jpg) :
- Permis de construire (dossier complet)
- Plan des environs (incluant les rues environnantes)
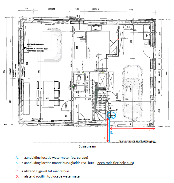
- Plan au sol avec indication de l’emplacement souhaité du compteur d’eau
- Plan d’implantation avec indication de l’alignement (cela peut être un croquis)
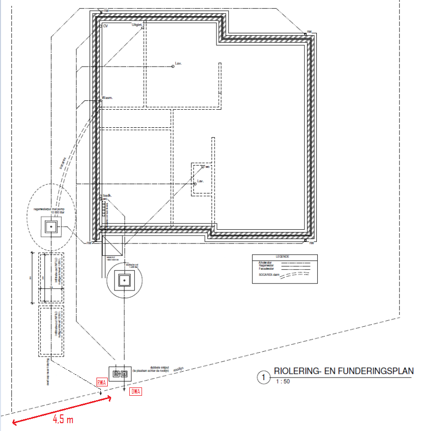
- Pour un raccordement à l’égout : plan de fondation et d’égouttage ou dessin du tracé de l’égout sur le domaine privé.
Vous ne disposez pas des plans nécessaires pour un immeuble existant ? Transmettez-nous alors des photos et/ou croquis clair(e)s de la situation.
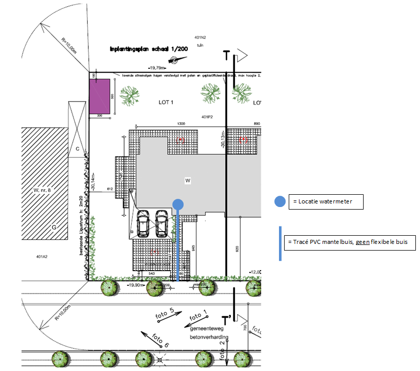
- Exemple de plan avec indication du compteur d’eau et de la gaine
- Exemple de croquis avec indication du compteur d’eau et de la gaine
Quand ?
Introduisez votre demande au moins 6 à 8 semaines avant la réalisation souhaitée. Si vous souhaitez également un raccordement à l’égout, vous pouvez en faire la demande en même temps. Vérifiez d’abord si Farys est le gestionnaire de votre égout.
Qui est le gestionnaire de votre égout ?
Nous ne pouvons prévoir de branchement d’eau potable que si :
- votre habitation est étanche au vent et à l’eau
- le compteur d’eau peut être placé à l’abri du gel
- la place disponible est suffisante pour votre compteur d’eau.
Vous trouverez de plus amples informations sur tous les travaux préparatoires dans la brochure Votre branchement d’eau potable : quels sont les travaux préalables à réaliser ?.